You are using an outdated browser.
Please upgrade your browser to improve your experience.

Tour Witzelstrasse - © Cro&Co
Tour Witzelstrasse - © Cro&Co
Tour Witzelstrasse - © Cro&Co
Tour Witzelstrasse - © Cro&Co
Tour Witzelstrasse - © Cro&Co

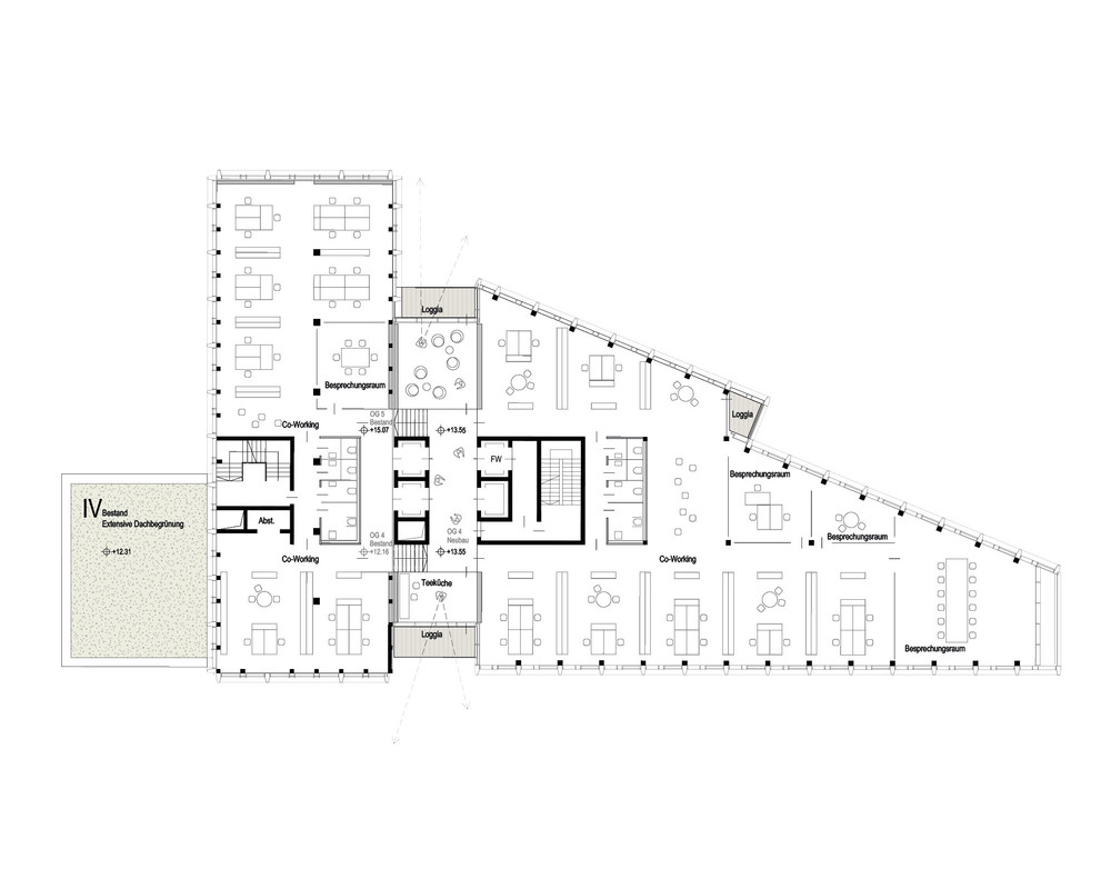
Tour Witzelstrasse

Concours pour la réhabilitation et extension d'une tour réversible, Düsseldorf (DE)

Le projet s’articule autour de la rénovation et de l’extension d’un édifice des années 70, situé sur un terrain en forme de pointe à l’entrée Sud de la ville. Déployant 11 000 m² de bureaux réversibles en laboratoires de recherche, notre concept prend la forme d’une tour signal de 44 mètres de hauteur, rejoignant decrescendo le bâti existant plus bas et exprimant par sa volumétrie et par le caractère de ses façades une forte identité dans le quartier.

Flexibilité, convivialité, durabilité et économie sont les caractéristiques du projet. Un noyau unique relie les plateaux existants et nouveaux par un système audacieux de paliers qui rattrape les niveaux différents. Des espaces de rencontre intérieurs et extérieurs à chaque étage ainsi que des terrasses végétalisées sur les toitures aux vues panoramiques inspirantes sur la ville assurent le lien social entre les utilisateurs et avec leur environnement.

Le socle du bâtiment largement transparent, établit des connexions visuelles avec l’espace public. Il met en valeur un hall en triple hauteur, s’ouvrant sur une place végétalisée, contribuant activement à l’animation du quartier avec l’intégration de fonctions publiques : espaces commerciaux, café, restaurant, espace de conférences.

Programme : Concours pour la réhabilitation et l’extension d’une tour réversible bureaux/​laboratoires à Düsseldorf avec des bureaux, des laboratoires, des commerces, un café/​restaurant et un parking | Surface : 11 000 m² | Hauteur : 44 m | Adresse : Düsseldorf, Allemagne | Concours : 2023, 3e Prix

Maître d’ouvrage : Cuberealestate | Maîtrise d’œuvre : CroMe Studio en collaboration avec Aldinger Architekten (Architectes), Peter und Lochner Beratende Ingenieure (Structure), Corall Ingenieure GmbH (Sécurité incendie) | Perspectives : ©Lemons Bucket.