You are using an outdated browser.
Please upgrade your browser to improve your experience.

INRAE - © Cro&Co
INRAE - © Cro&Co
INRAE - © Cro&Co
INRAE - © Cro&Co
INRAE - © Cro&Co
INRAE - © Cro&Co
INRAE - © Cro&Co
INRAE - © Cro&Co
INRAE - © Cro&Co
INRAE - © Cro&Co
INRAE - © Cro&Co

INRAE

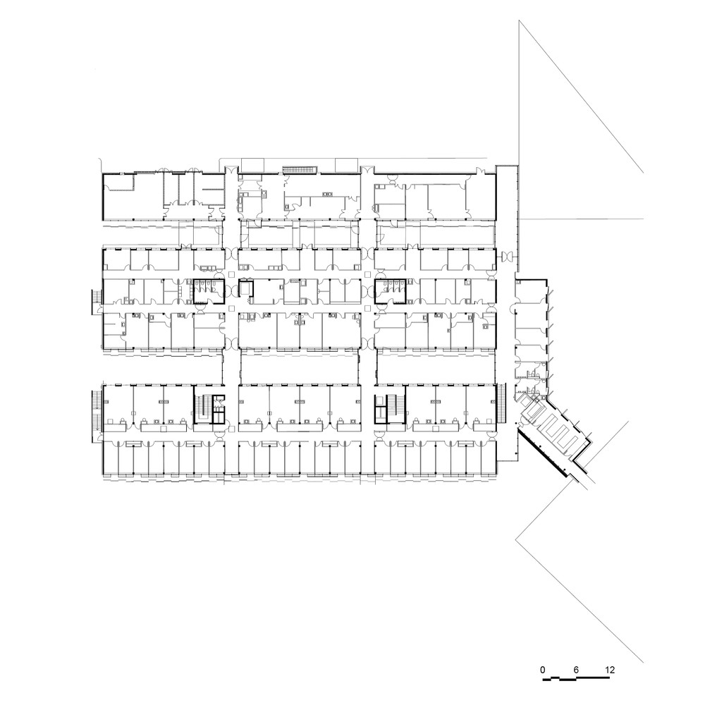
Extension du laboratoire de l’INRAE, Jouy-en-Josas (78)

L’extension du bâtiment de l’Institut national de recherche pour l’agriculture, l’alimentation et l’environnement à Jouy-en-Josas, petite commune des Yvelines au sud-ouest de l’agglomération francilienne, entre en résonance avec le paysage vallonné de la Bièvre dans lequel il s’insère, entre champs et forêts. Il se démarque du bâtiment des années 1980 dont il complète la programmation par de nouveaux laboratoires de recherche, tant par son expression formelle que par son ancrage dans son site. 

Les laboratoires s’encastrent dans un terrain en pente, tout en préservant l’alignement des toitures. L’effet caméléon est assuré : le bâtiment se fond dans un paysage mouvant qui semble l’aspirer. Sa toiture plantée parfait cette incrustation, tandis que les sorbonnes – hottes des laboratoires servant à la ventilation – placées en toiture se détachent et rappellent que l’ensemble est un artefact, une ville en miniature ici encore. La composition s’achève par une série de brise-soleils en façade qui révèlent ou occultent le paysage, entrent en vibration avec lui.

Programme : Construction d’un bâtiment de recherche dans le domaine de la microbiologie alimentaire au service de la santé humaine (MICALIS) sur le centre INRAE de Jouy-en-Josas comprenants des laboratoires, des bureaux/​enseignement, de la logistique, une plateforme technique et une animalerie, une connexion avec le bâtiment existant des biotechnologies et l’aménagement d’une plate-forme technique de microscopie | Surface : 6 200 m² | Adresse :Domaine de Vilvert 78350 Jouy-en-Josas | Livraison : 2014

Maître d’ouvrage : Institut National de Recherche pour l’Agriculture, l’Alimentation et l’Environnement | Architecte mandataire : Cro&Co Architecture | Maîtrise d’œuvre : Terrell (Technique), Arcora (Façades), Philippe Talbot & Associés (Economie), Oasiis (Environnement), Francis Klein (OPC) | Conseils :Qualiconsult (Bureau de contrôle), Dekra Systèmes (Conseil Sécurité Incendie), SARL CRR BTP (CSPS) | Photos : ©Gaston F. Bergeret, Bertrand Nicolas.